Нужна консультация?
Наши специалисты ответят на любой интересующий вопросХарактеристики модульной системы
Для производственных и сборочных предприятий TECNA разработала серию машин для выполнения многоточечной сварки. Ассортимент продукции включает широкий выбор моделей в различных конфигурациях, а именно, для двухсторонней сварки, с радиальным перемещением верхнего плеча, а также с линейным перемещением верхнего плеча. Имеются различные аксессуары и электроды для удовлетворения различных требований рабочего процесса.
Компактные размеры, наличие встроенных трансформаторов, электронные блоки управления, полупроводниковые компоненты электронных систем, цилиндры, пневматические системы и охлаждающие контуры этих машин позволят выполнять разнообразные работы с минимальными затратами.
Кроме того, использование данных встроенных компонентов позволяет упростить выполняемые задачи и сократить время, необходимое для их реализации. Данные сварочные машины выпускаются с блоками управления, специально рассчитанными на данные машины.
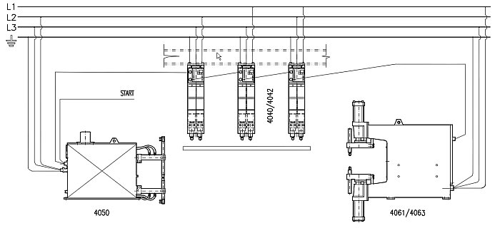
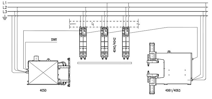
Каждая сварочная машина может управляться независимым образом. Однако, машины можно соединить каскадом, и тогда сложные сварочные работы можно будет выполнять без внешнего участия. За счет общего соединения трехфазных машин можно создавать высокопроизводительные модули с минимальным потреблением электроэнергии из сети.
Модульные машины выпускаются без блока управления для специальных вариантов применения: они оснащены отдельными блоками управления и питания.
Модульные сварочные агрегаты предназначены для использования только в промышленных условиях при реализации систем для контактной сварки. Не допускается использование ее в домашних условиях, поскольку машина на это не рассчитана. Для конченых пользователей (напр., частных мастерских) TECNA может предложить широкий выбор других сварочных машин.
Пример соединения нескольких сварочных машин


По отдельному заказу возможны специальные варианты исполнения:
- Различные вылеты плеч.
- Блоки с линейным перемещением верхнего плеча и регулируемым ходом цилиндра.
- Блоки с линейным перемещением верхнего плеча в защищенном варианте исполнения.
- Варианты с датчиками положения для управления хода цилиндра.
- Варианты без блоков управления для установок с централизованным управлением
